Prospettivecasa il tuo punto di incontro
Italiano
3 Camere 2 Bagni 1 Box/Posti auto 187 m2
Caratteristiche principali
Prezzo
145.000 EUR
Classe
G (369,02 [kWh/m²a])
Locali
4
Mq Box
54
Mq Giardino
70
Mq Balcone
14
Altre caratteristiche e accessori
Stato Immobile
Buono
Grado
Economico
Panorama
Vista Giardino
Orientamento
Nord Ovest Sud Est
Lati Liberi
2
Giardino
Privato
Arredi
Possibilità
Tipo Soggiorno
Soggiorno
Tipo Cucina
Abitabile
Riscaldamento
Autonomo
Tipo Riscaldam.
Caldaia
Tipo Impianto
Radiatori
Fonte Energetica
Metano
Acqua Calda
Autonoma
Raffrescamento
Split
Infissi
Legno Doppio Vetro
Serramenti
Buono
Persiana
Persiana Legno
Pavim. Giorno
Gres Porcellanato
Pavim. Notte
Parquet
Pavim. Cucina
Gres Porcellanato
Pavim. Bagno
Ceramica
Accesso Disabili
No
Accessori
Aria Condizionata, Doppi Vetri, Passaggio Pedonale, Porta Blindata, Tavolini Esterni
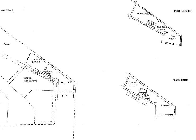
Vespolate interessante soluzione immobiliare tipologia villetta a schiera composta da piano terreno ingresso soggiorno cucina abitabile primo piano ampia camera da letto matrimoniale cameretta bagno Mansarda terza camera o studio e ampio bagno completano l'area cortilizia di proprieta' e l'ampio box antistante .
L' Agenzia Prospettivecasa fa parte del Centro Immobiliare Novara - CONCLIENTE -. Concliente ti offre la forza unita di 9 Agenzie che lavorano in esclusiva per Te per offrirti un servizio unico sul territorio novarese. Se vuoi vendere o comprare una casa, un professionista del team Concliente sarà a tua disposizione personale. CONCLIENTE, LA PIU' VELOCE SQUADRA IN CITTA', 9 AGENZIE, 1 PROVVIGIONE. Visita il sito www. prospettivecasa.com www.concliente.it
VIA BATTISTI 3, Vespolate (NO)
Cookie preference