Prospettivecasa il tuo punto di incontro
Italiano
2 Camere 1 Bagni 97,2 m2
Caratteristiche principali
Prezzo
125.000 EUR
Classe
VA
Locali
3
Mq Balcone
10,4
Altre caratteristiche e accessori
Stato Immobile
Abitabile
Grado
Economico
Piano
Primo
Orientamento
Ovest Est
Totale Piani
Cinque
Lati Liberi
2
Giardino
Cortile
Arredi
Non Arredato
Tipo Soggiorno
Soggiorno
Tipo Cucina
A Vista
Riscaldamento
Centralizzato
Tipo Riscaldam.
Caldaia
Tipo Impianto
Radiatori
Fonte Energetica
Metano
Acqua Calda
Centralizzata
Raffrescamento
No
Infissi
Legno
Serramenti
Mediocre
Persiana
Tapparella Legno
Pavim. Giorno
Parquet
Pavim. Notte
Graniglia
Pavim. Cucina
Parquet
Pavim. Bagno
Ceramica
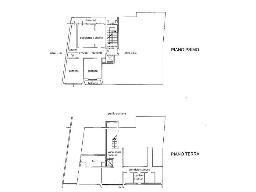
Cantina - Solaio
Cantina
Accesso Disabili
Nessuna Barriera
Accesso interno disabili
Pieno accesso
Isolamento
Non presente
Isolamento termico
Nessuno
Isolamento acustico
Nessuno
Destinato a residenti
Si
Impianto d’irrigazione
No
VMC
No
Accessori
Ascensore
Novara Sacro Cuore interessante appartamento sito al piano primo con ascensore composto da ingresso soggiorno con cucina aperta camera da letto matrimoniale cameretta bagno cantina doppia esposizione Libero otto mesi dal compramesso .
Si specifica che l'impianto di riscaldamento e' di tipo centralizzato con contabilizzatori di consumo per cui le spese condominiali indicate sono comprensive della sola quota fissa su base millesimale con esclusione della quota a consumo.
L' Agenzia Prospettivecasa fa parte del Centro Immobiliare Novara - CONCLIENTE -. Concliente ti offre la forza unita di 9 Agenzie che lavorano in esclusiva per Te per offrirti un servizio unico sul territorio novarese. Se vuoi vendere o comprare una casa, un professionista del team Concliente sarà a tua disposizione personale. CONCLIENTE, LA PIU' VELOCE SQUADRA IN CITTA', 9 AGENZIE, 1 PROVVIGIONE. Visita il sito www. prospettivecasa.com www.concliente.it
VIA TORELLI 15, Novara (NO)
Cookie preference