Prospettivecasa il tuo punto di incontro
Italiano
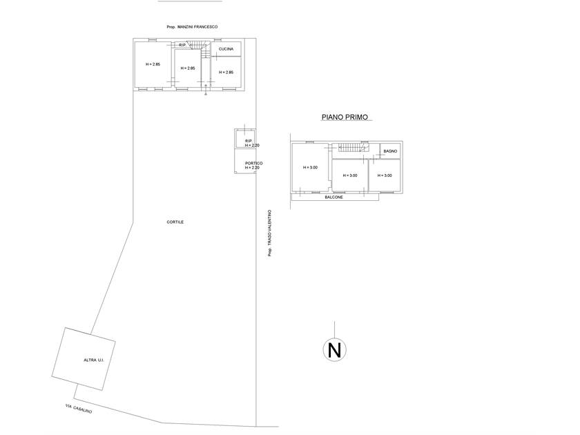
3 Camere 1 Bagni 180 m2
Caratteristiche principali
Prezzo
55.000 EUR
Classe
VA
Locali
4
Altre caratteristiche e accessori
Stato Immobile
Mediocre
Grado
Economico
Panorama
Vista Giardino
Piano
Primo
Orientamento
Sud Nord
Lati Liberi
3
Giardino
Privato
Arredi
Non Arredato
Tipo Soggiorno
Soggiorno
Tipo Cucina
Abitabile
Riscaldamento
No
Tipo Impianto
No
Acqua Calda
Assente
Confienza interessante soluzione immobiliare totalmente da ristruturare attualmente composta piano terreno ingresso cucina tinello soggiorno piano primo tre camere da letto bagno ripostigli sull'area di proprieta ampiao giardino di mq.700 c.a
L' Agenzia Prospettivecasa fa parte del Centro Immobiliare Novara - CONCLIENTE -. Concliente ti offre la forza unita di 9 Agenzie che lavorano in esclusiva per Te per offrirti un servizio unico sul territorio novarese. Se vuoi vendere o comprare una casa, un professionista del team Concliente sarà a tua disposizione personale. CONCLIENTE, LA PIU' VELOCE SQUADRA IN CITTA', 9 AGENZIE, 1 PROVVIGIONE. Visita il sito www. prospettivecasa.com www.concliente.it
VIA CASALINO 30, Confienza (PV)
Cookie preference